Home Plans
The Meadow
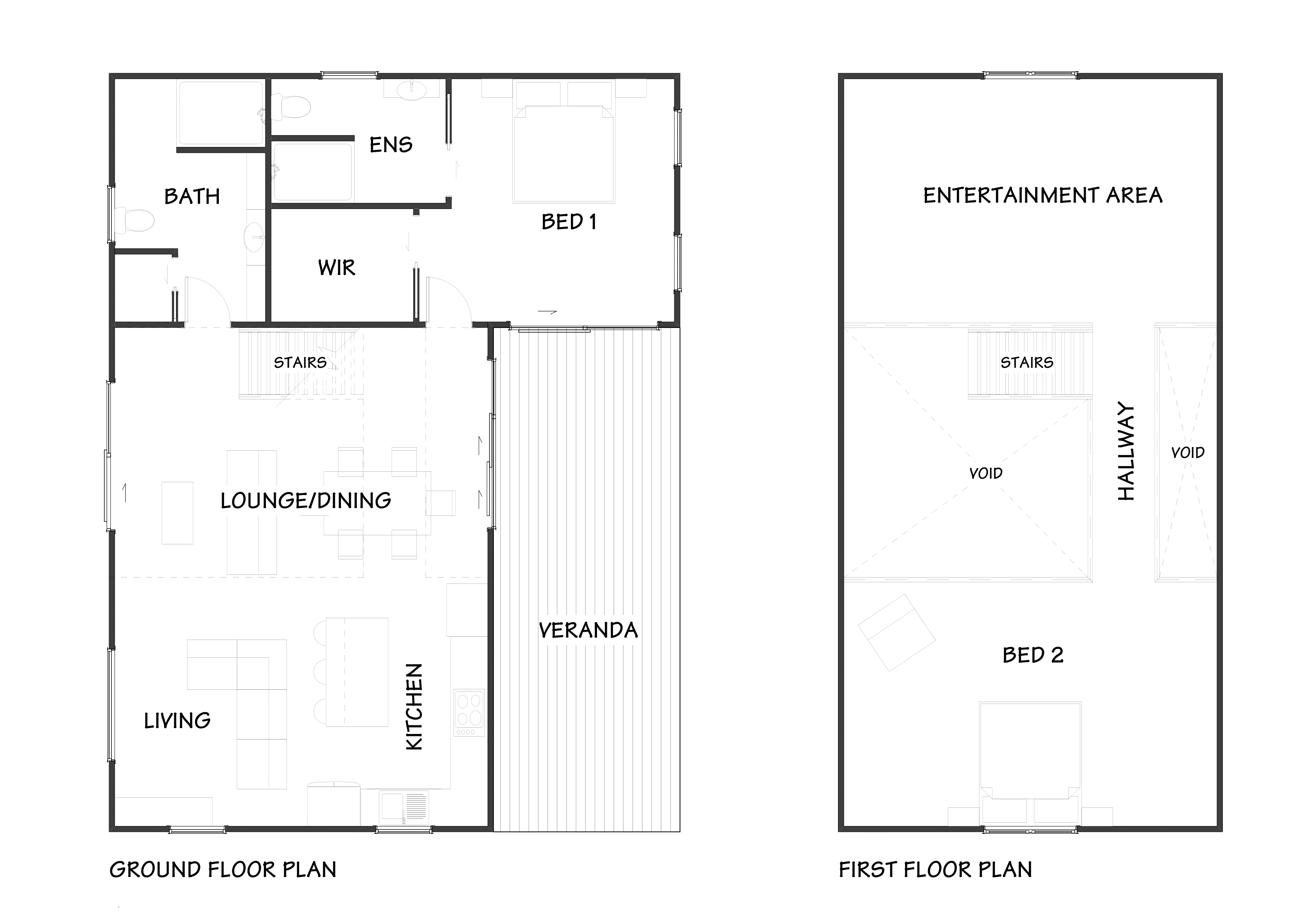
NT142-2 Traditional
Size
142m²
Bedrooms
2
Bathrooms
1
Ensuite
1
Toilets
2
Length
12.2m
Width
9.2m
Lounge/dining
4m x 6.m
Kitchen
4m x 3m
Living
4 x 3m
Bedroom 1
3.5m x 3.9m
Bedroom 2
6m x 4m








Floor plan: NT142-2 "The Meadow"
Designed for effortless modern living, featuring generous open-plan spaces, soaring ceilings and a full 3m-wide veranda for year-round outdoor enjoyment. The Meadow is suitable for downsizers seeking comfort and quality, or younger couples wanting the warmth, flexibility and spaciousness of a larger architectural barn home.
Follow the link below to speak with us about this design or any other projects you have in mind. You can also subscribe to our newsletter further down the page, or return to the house plans page here.