Home Plans
The Weekend
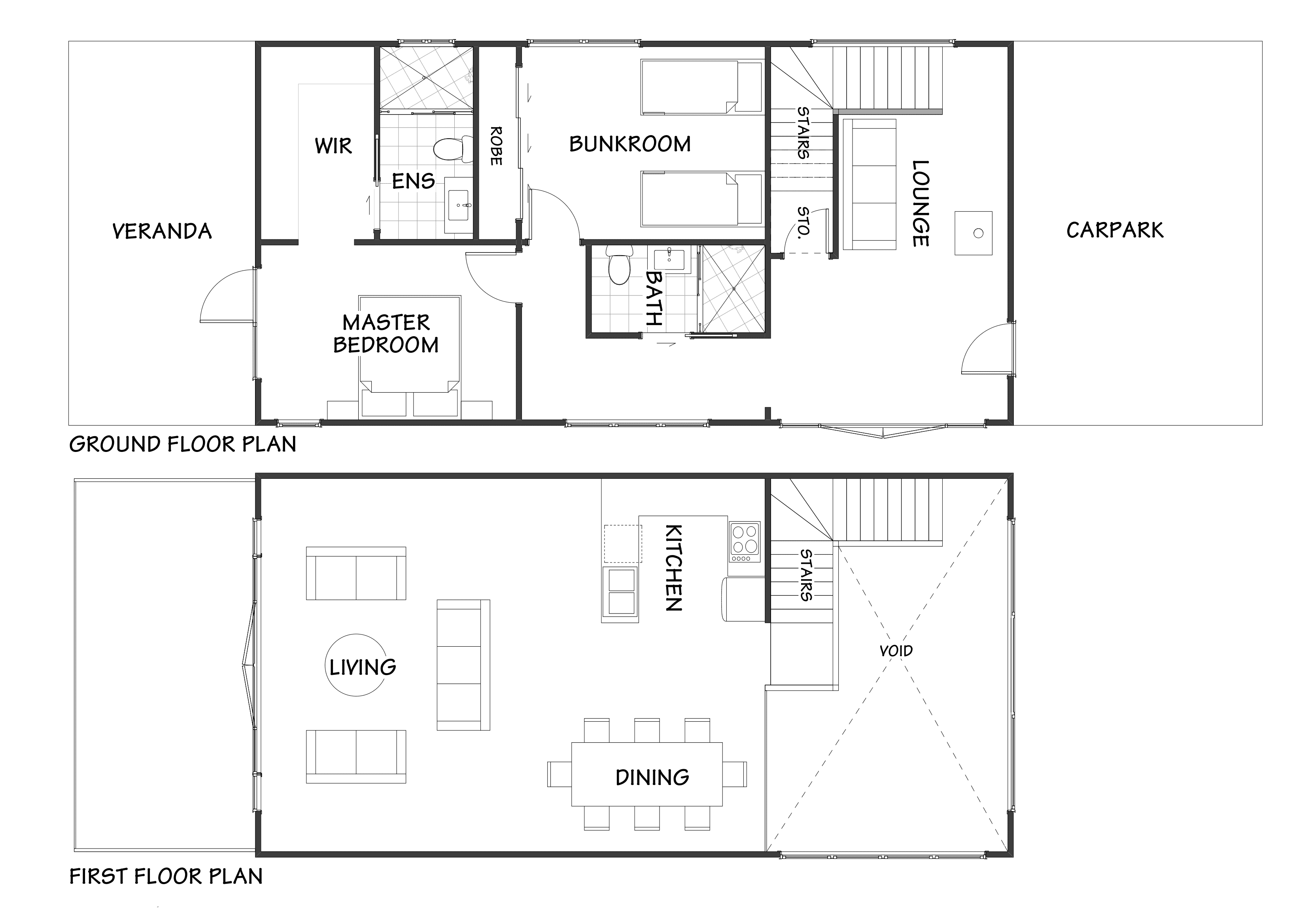
NM124-2 Traditional
Size
124m²
Bedrooms
2
Length
12.2m
Width
6.2m
Bathrooms
2
Toilets
2
Carport
1
Ensuite
1
WIR
1







Floor plan: NM124-2 "The Weekend"
A purposefully designed holiday barn home, the 6m x 12m Montana timber frame features a master bedroom, bunkroom, and generous verandah for taking in the views - ideal as a stylish getaway, family retreat, or premium Airbnb rental.
Follow the link below to speak with us about this design or any other projects you have in mind. You can also subscribe to our newsletter further down the page, or return to the house plans page here.