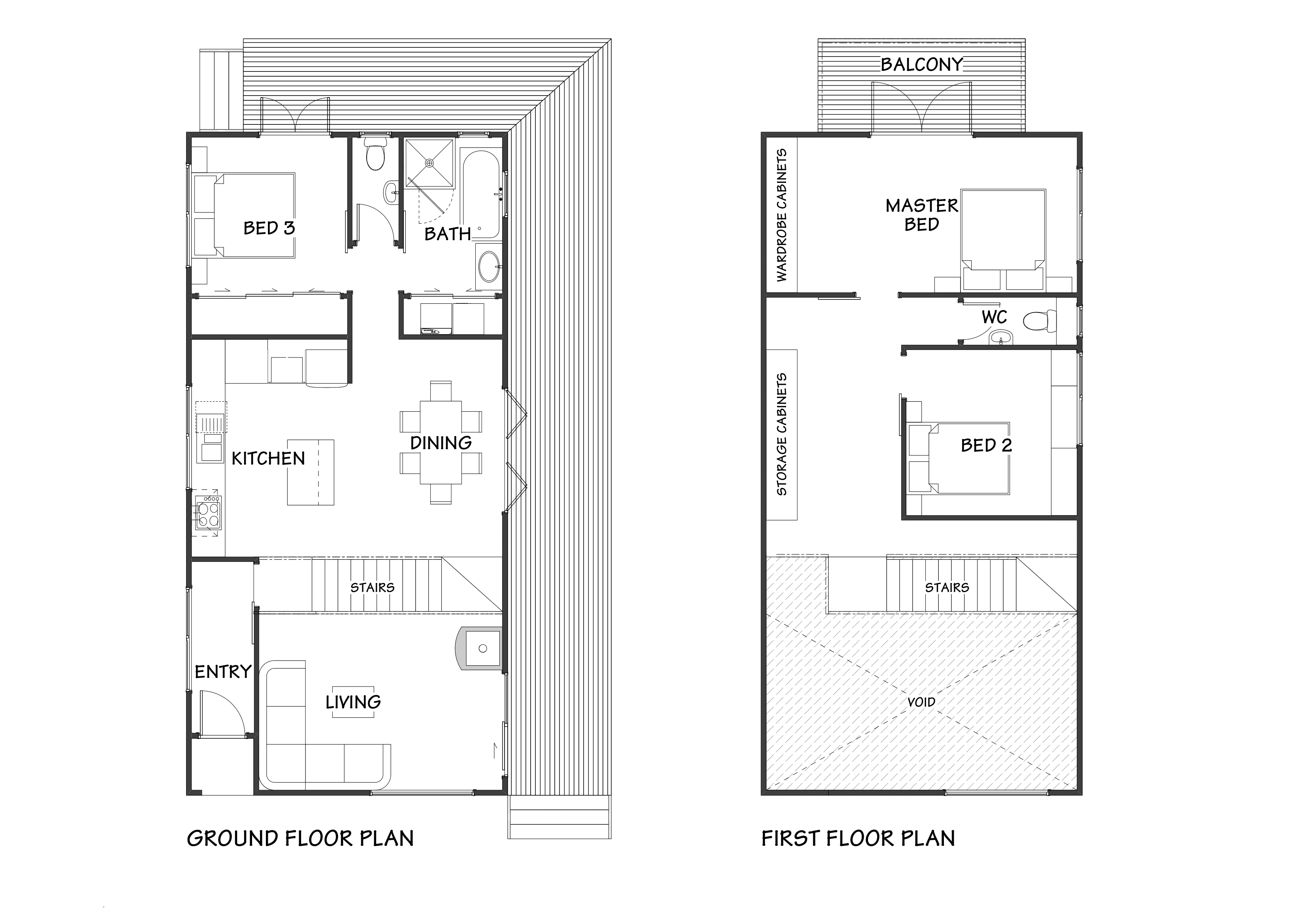
Home Plans
The Summit
NM132-2 Modern
Size
132m²
Bedrooms
3
Toilets
2
Bathrooms
1
Ground floor area
80.89m²
First floor area
51.57m²
Kitchen
3m x 4.2m
Length
6.3m
Width
12.9m








Floor plan: NM132-2 "The Summit"
A contemporary modular double-storey Montana barn (6 × 12.6m), designed for flexible, intergenerational living. Featuring a generous upper balcony and spacious ground-floor deck, it delivers versatile modern living with strong indoor-outdoor connection and efficient, adaptable design.
Follow the link below to speak with us about this design or any other projects you have in mind. You can also subscribe to our newsletter further down the page, or return to the house plans page here.