Home Plans
The Retreat
NM70-1 Modern
Size
70m²
Bedrooms
2
Bathrooms
2
Toilets
1
Length
15.4m
Width
6.35m




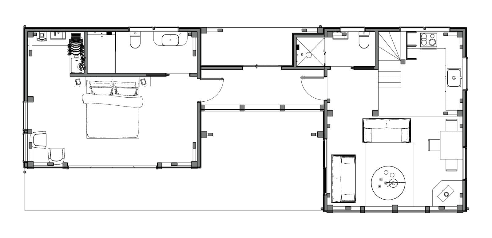
Floor plan: NM70-1 "The Retreat"
A compact 70m² SIP home (4.8 × 6.35m) with two bedrooms and a gable roof, designed as a secondary dwelling or retreat. Surprisingly spacious, it features a linkway connection and suits luxury small living or a high-quality Airbnb-style getaway. The second bedroom is ideal for kids, located upstairs in the loft.
Follow the link below to speak with us about this design or any other projects you have in mind. You can also subscribe to our newsletter further down the page, or return to the house plans page here.