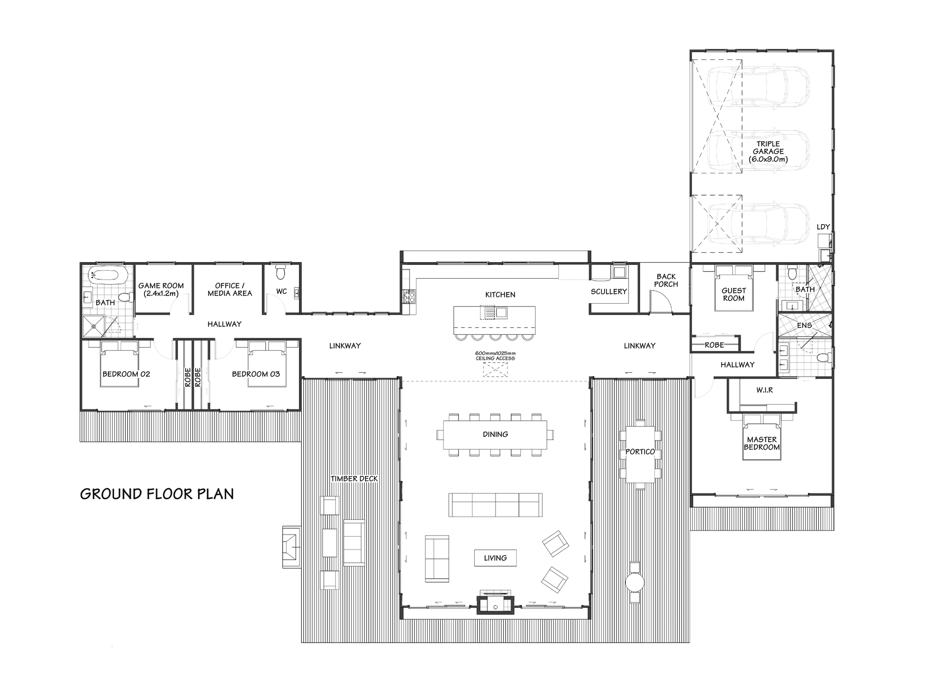
Home Plans
The Oakwright
NT378-2 Heritage
Size
378m²
Bedrooms
4
Bathrooms
3
Toilets
4
Triple garage
6m x 9m
Attic
8m x 4.8m
Office/media
2.9m x 2.1m
Length
32.28m
Width
24.38m
Scullery
1







Floor plan: NT378-2 "The Oakwright"
A prestigious timber-frame residence featuring a grand central barn with expansive bedroom wings and elegant linkways. Designed for luxury and space, it offers seamless indoor-outdoor living with generous verandas, creating versatile, all-weather entertaining areas for a refined, legacy lifestyle.
Follow the link below to speak with us about this design or any other projects you have in mind. You can also subscribe to our newsletter further down the page, or return to the house plans page here.