Home Plans
The Longleaf
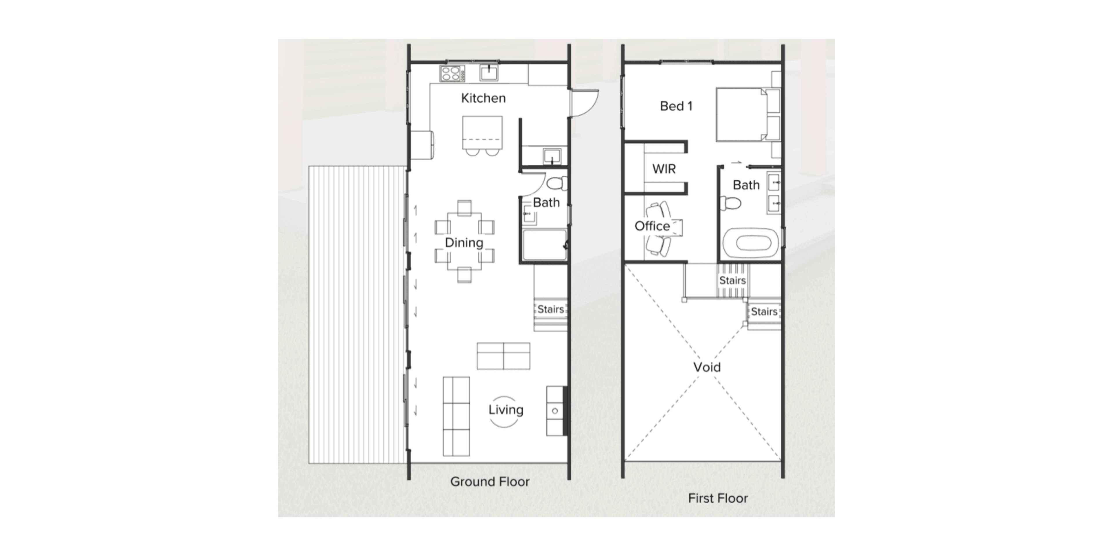
NM92-2 Hybrid
Floor area
92m²
Bedrooms
1
Length
12.24m
Width
4.98m
Ground floor area
60.98m
First floor area
30.83m
Bathrooms
2
Toilets
2









Floor plan: NM92-2 "The Longleaf"
A striking SIP barn featuring expansive open-plan living below and a private upper level with bedroom, WIR, bathroom, and office. Dramatic front-facing glazing captures unspoiled views, delivering strong architectural presence and a true wow factor.
Follow the link below to speak with us about this design or any other projects you have in mind. You can also subscribe to our newsletter further down the page, or return to the house plans page here.