Home Plans
The Highfield
NM137-2 Modern
Size
137m²
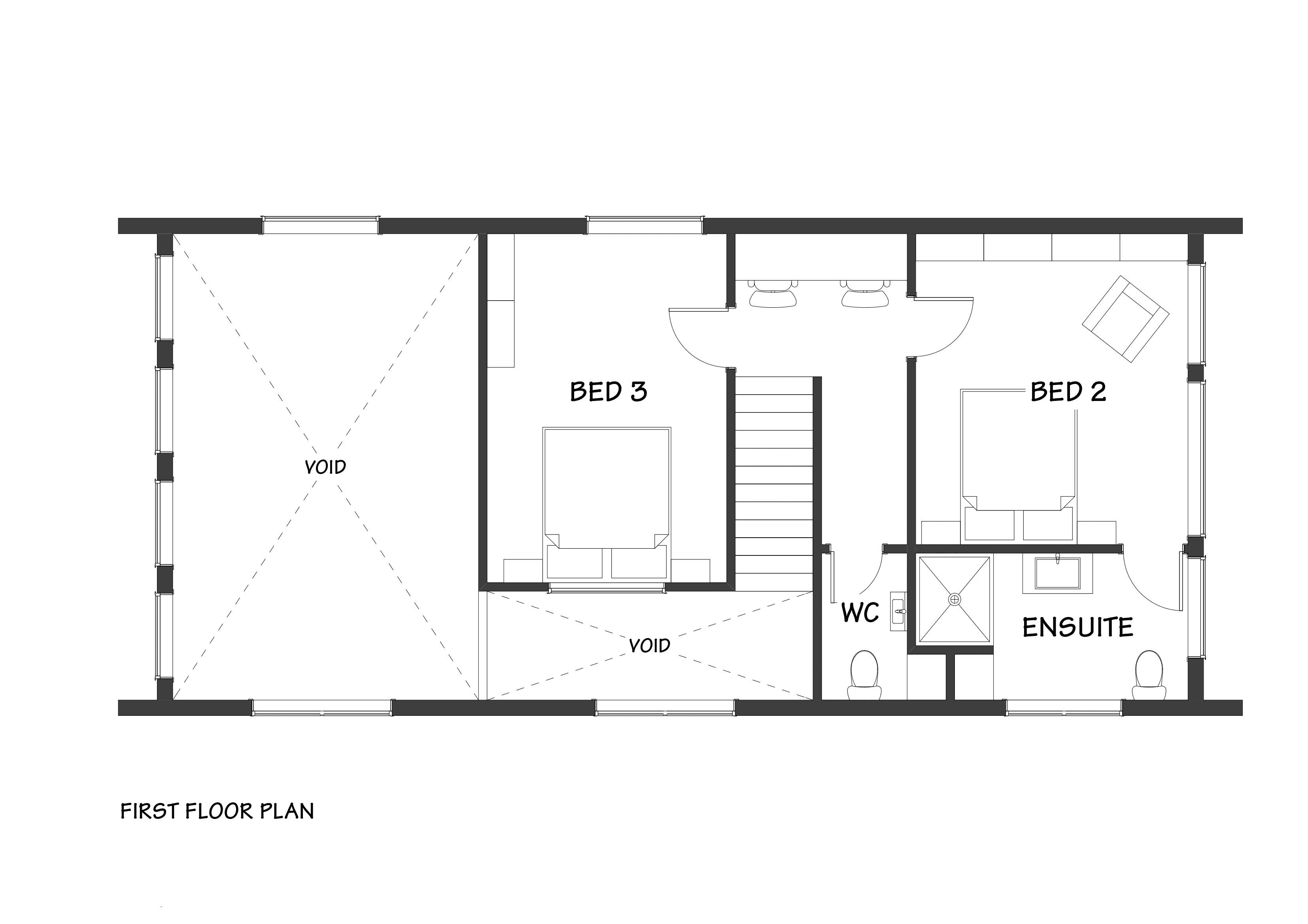
Bedrooms
3
Bathrooms
2
Toilets
3
Length
14.45m
Width
6.4m
Living
3m x 6m
Dining/kitchen
4m x 5m
Office
2.7m x 1.7m
Bed 1
3.9m x 3m
Bed 2
3.5m x 3.9m
Bed 3
3.1m x 4.5m




Floor plan: NM137-2 "The Highfield"

Floor plan: NM137-2 "The Highfield"
Designed for modern New Zealand living, The Highfield features vaulted ceilings, exposed timber beams and expansive open-plan spaces, built using SIPs. Equally suited to coastal retreats, rural lifestyle blocks or family living, it combines understated luxury with warmth, flexibility and a strong connection to the landscape.
Follow the link below to speak with us about this design or any other projects you have in mind. You can also subscribe to our newsletter further down the page, or return to the house plans page here.