Home Plans
The Hideaway
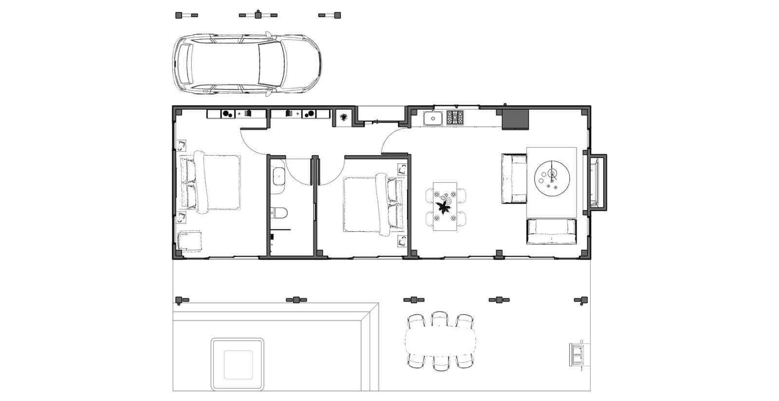
NT70-1 Hybrid
Size
70m²
Bedrooms
2
Bathrooms
1
Toilets
1
Length
5m
Width
14m






Floor plan: NT70-1 "The Hideaway"
A charming, fast-to-build timber-frame cottage with a traditional character. Featuring a spacious open-plan kitchen and living area, covered entrance, veranda, and carport, it offers practical comfort, efficient design, and easy indoor-outdoor living in a compact, inviting home.
Follow the link below to speak with us about this design or any other projects you have in mind. You can also subscribe to our newsletter further down the page, or return to the house plans page here.