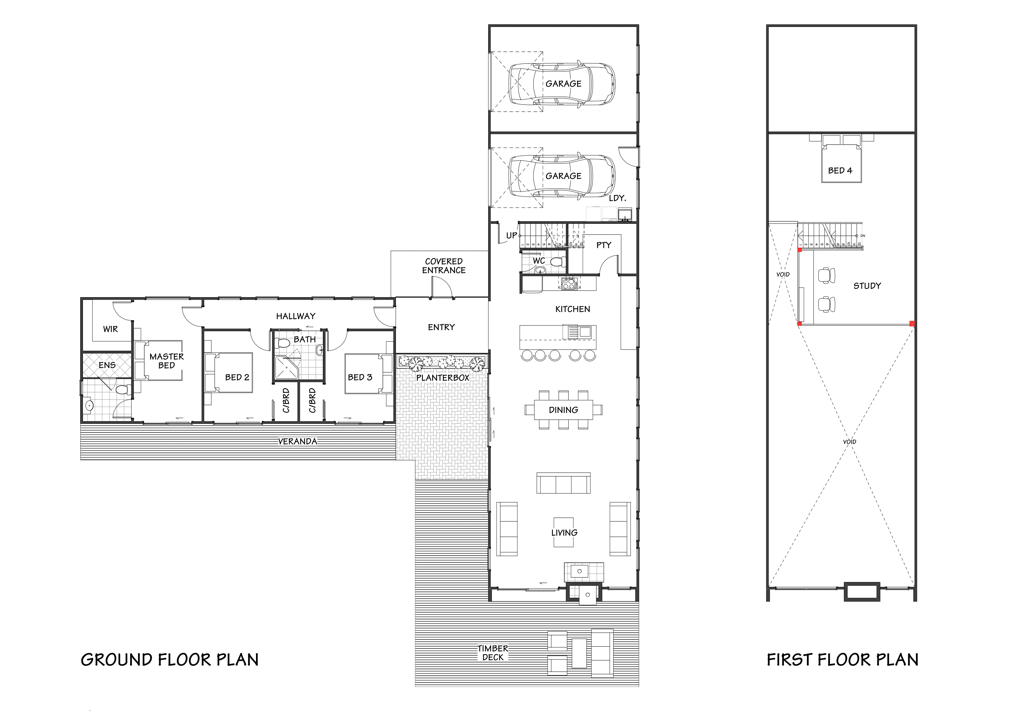
Home Plans
The Haven
NT258-2 Modern
Size
258m²
Bedrooms
4
Study
1
Garage 1
6m x 4.3m
Garage 2
6m x 3.5m
Length
23.68m
Width
22.92m
Kitchen
4.7m x 3m
Living
6m x 4.8m
Dining
6m x 4.8m








Floor plan: NT258-2 "The Haven"
A thoughtfully designed two-storey barn with soaring 6m trusses to the living area and a dedicated bedroom wing. Featuring dual garages, expansive verandas, a large timber deck, and an upper study with bedroom, it offers flexible, spacious living with strong indoor-outdoor connection.
Follow the link below to speak with us about this design or any other projects you have in mind. You can also subscribe to our newsletter further down the page, or return to the house plans page here.