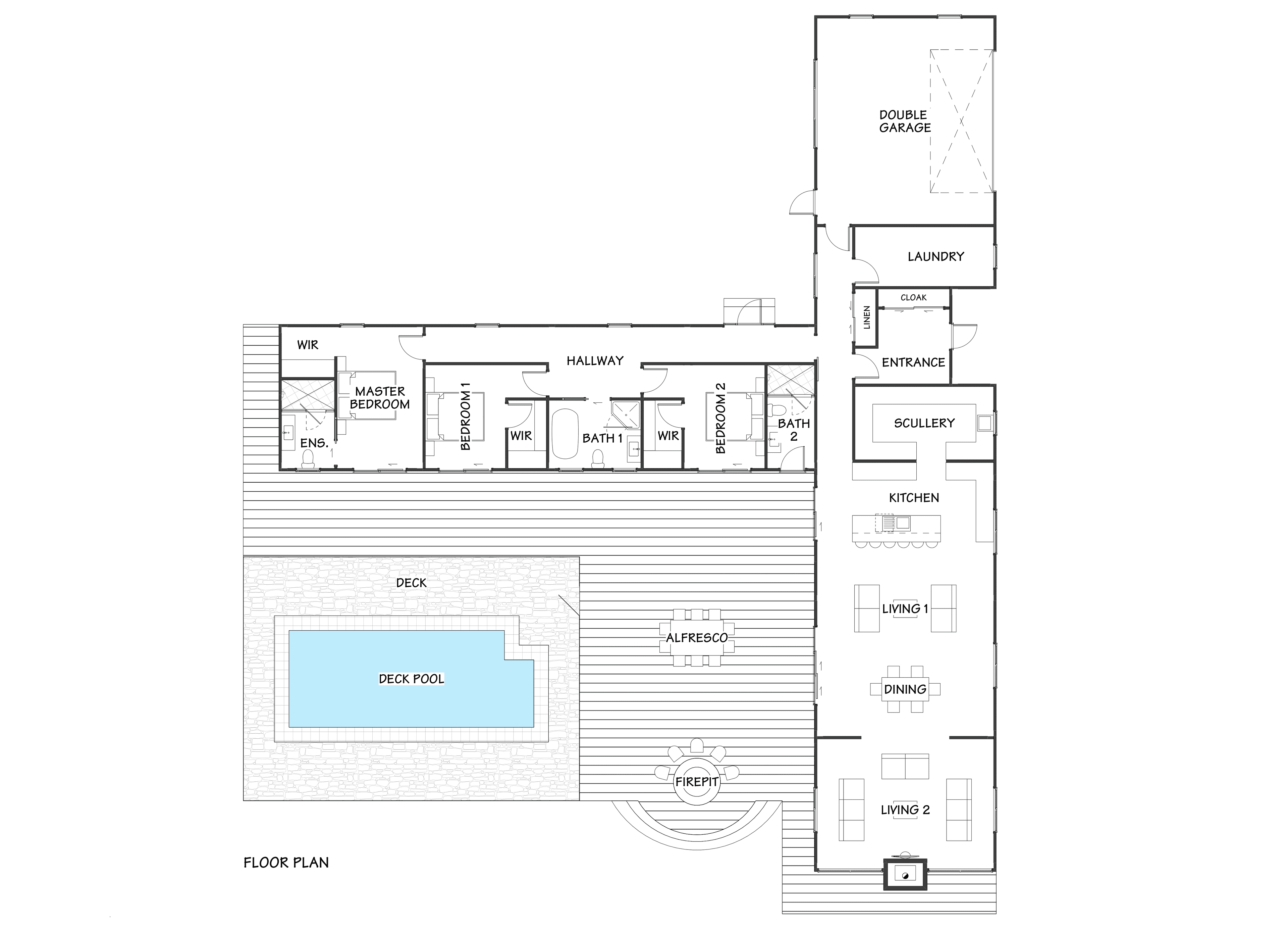
Home Plans
The Foundation
NM270-1 Heritage
Size
270m²
Bedrooms
3
Double Garage
6m x 4m
Toilets
3
Living Rooms
2
Dining
6m x 3.1m
Kitchen
6m x 3.1m
Length
29.10m
Width
24.4m










Floor plan: NM270-1 "The Foundation"
A thoughtfully designed single-storey SIP barn home combining efficient proportions with generous living. Featuring a dedicated 3-bedroom wing, expansive front-facing living areas, and large picture windows to capture the view. The Foundation offers a bright, spacious interior within a refined contemporary barn form.
Follow the link below to speak with us about this design or any other projects you have in mind. You can also subscribe to our newsletter further down the page, or return to the house plans page here.