Home Plans
The Forma
NM152-2 Modern
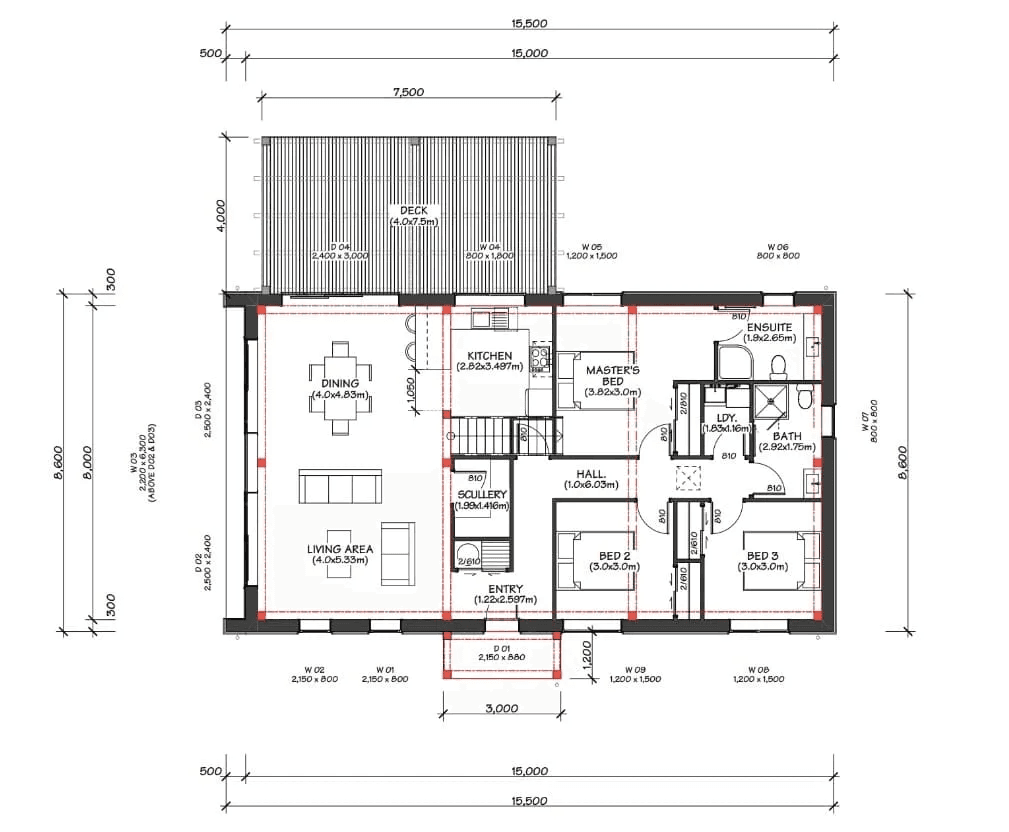
Size
152m²
Bedrooms
3
Bathrooms
2
Toilets
2
Dining
4m x 4m
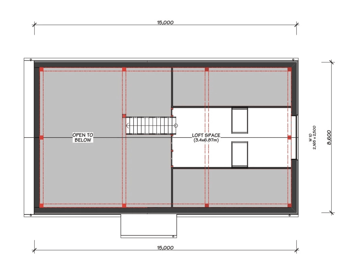
Loft
3.4m x 6.9m
Ground floor area
129m²
First floor area
23.36m²








Floor plan: NM152-2 "The Forma"

Floor plan: NM152-2 "The Forma"
A striking single-storey English-style timber barn with queen-centred posts, spanning 6 × 18.4m. Featuring a master suite with ensuite, expansive loft storage, and a large veranda, it offers soaring ceilings and a dramatic barn hall aesthetic with exceptional presence and wow factor.
Follow the link below to speak with us about this design or any other projects you have in mind. You can also subscribe to our newsletter further down the page, or return to the house plans page here.