Home Plans
The FirstFrame
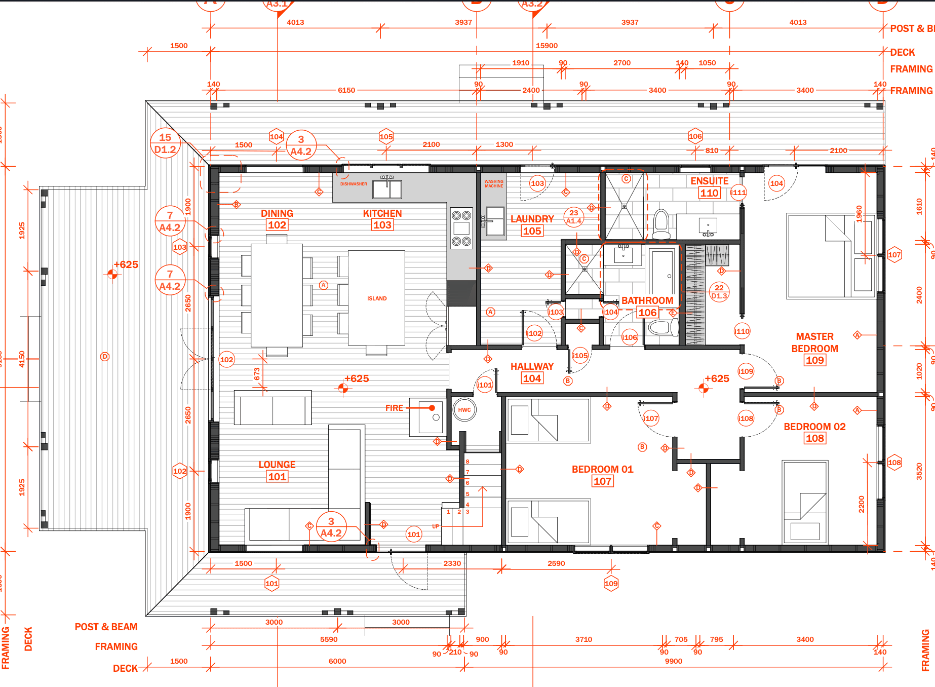
NH185-2 "The Hybrid"
Size
185m²
Bedrooms
4
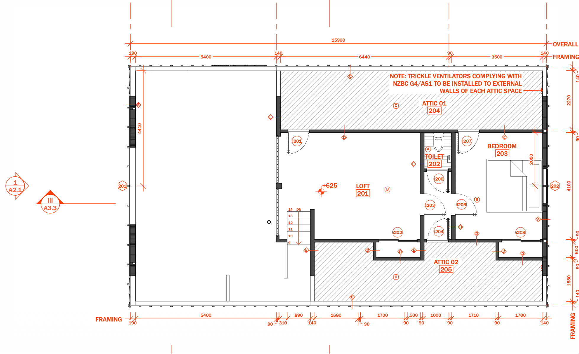
Loft
1
Toilets
3
Bathrooms
1
Ensuite
1









Floor plan: NH185-2 "The FirstFrame"
Built with advanced SIP construction, the FirstFrame hybrid barn delivers a balance of authentic mortise and tenon barn home construction with affordability. Superior insulation, airtight comfort, and exceptional energy efficiency for healthier year-round living. Offsite-manufactured panels enable faster build times and reduced labour costs, with turnkey pricing typically around $3,500/m².
A key feature of the FirstFrame is its storage. It’s not included in the stated square metreage, making it essentially “free” space. The area is extensive and highly functional - ideal for storing belongings. Refer to the floor plan: the sections marked “attic” effectively provide additional usable home space at little-to-no extra cost, as do the sizable veranda and lean-tos.
Generally the price for the FirstFrame is in the NZD 580-690k range, nationwide. Each area is different so to get the right price, specific to your land, firstly get in touch - take the time to send us a detailed enquiry via our contact page and include the things that matter to you.
To add a spacious double garage and linkway to the design just ask. We have a design to accommodate exactly this seen in the slider above, taking the total size to 287m². The square metre rate is considerably lower for these add-ons.
If you would like to view the FirstFrame in person, we have a recently completed FirstFrame here on our farm in Hawke's Bay. See our display homes page for more details. We also have more information on affordable hybrid barn homes here.
Follow the link below to speak with us about this design or any other projects you have in mind. You can also subscribe to our newsletter further down the page, or return to the house plans page here.