Home Plans
The Balance
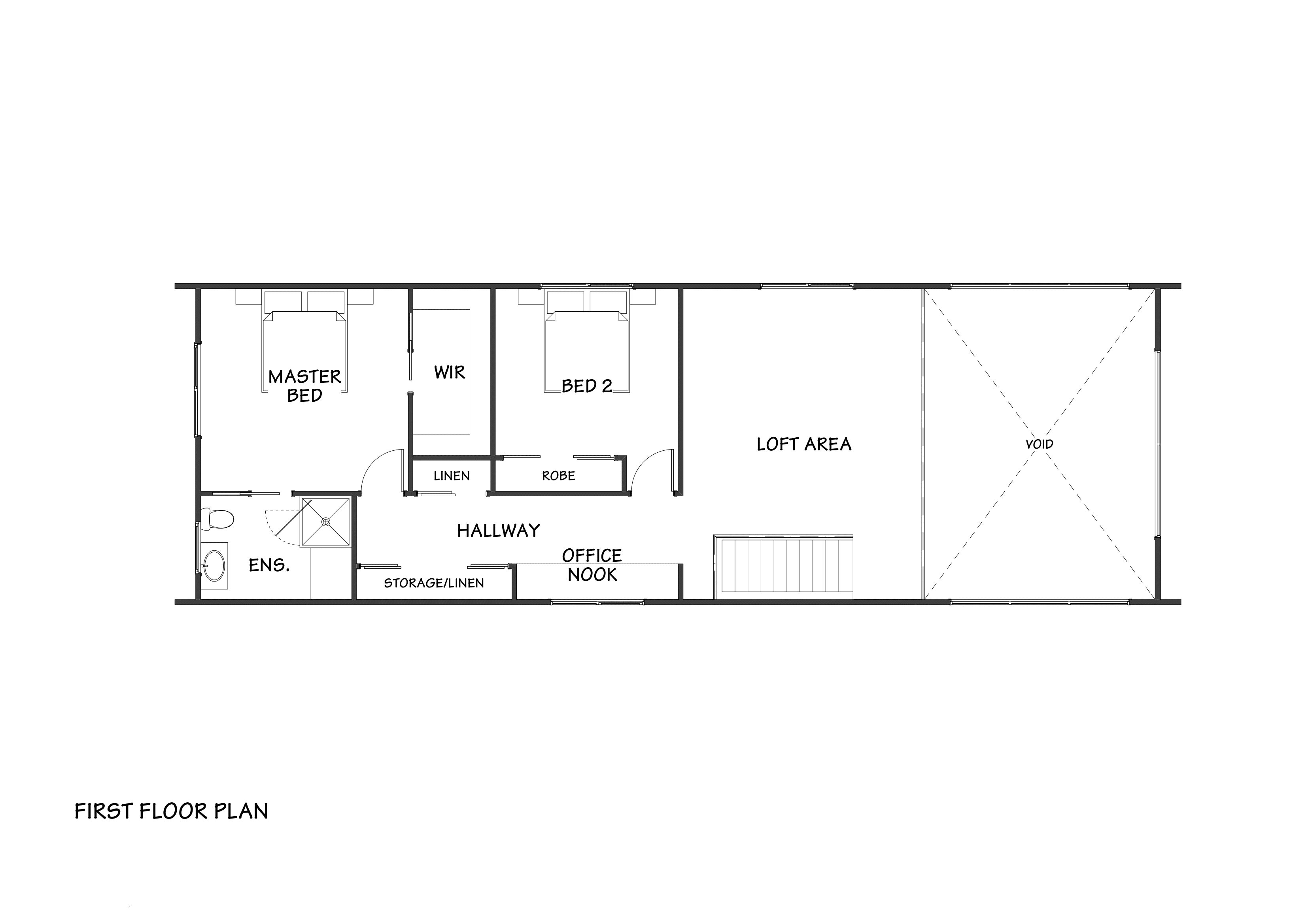
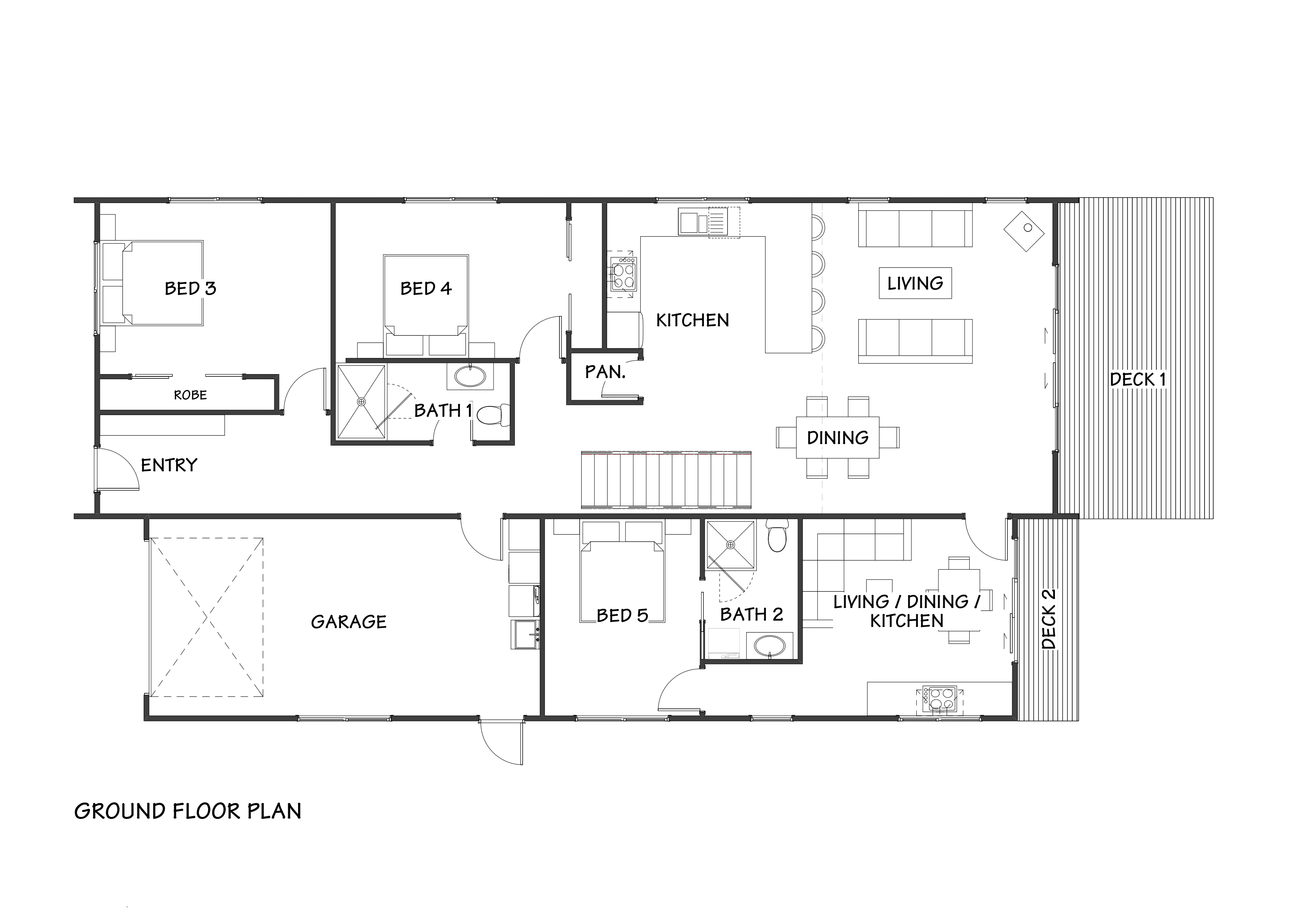
NM265-2 Modern
Size
265m²
Bedrooms
5
Bathrooms
3
Toilets
3
Length
19.4m
Width
10.10m
Loft
4.6m x 6m
Garage
7.5m x 3.8m
Ground floor area
181.11m²
First floor area
83.94m²





Floor plan: NM265-2 "The Balance"

Floor plan: NM265-2 "The Balance"
A refined two-storey SIP timber-frame barn designed for flexible, intergenerational living. Featuring dual living zones, a spacious loft, and a master suite with ensuite and walk-in robe, it offers future-proofed comfort, generous proportions, and seamless indoor-outdoor flow via a large veranda.
Follow the link below to speak with us about this design or any other projects you have in mind. You can also subscribe to our newsletter further down the page, or return to the house plans page here.