Floor Plans

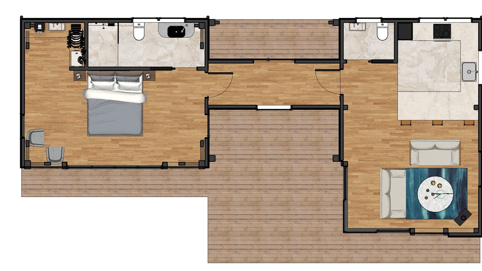
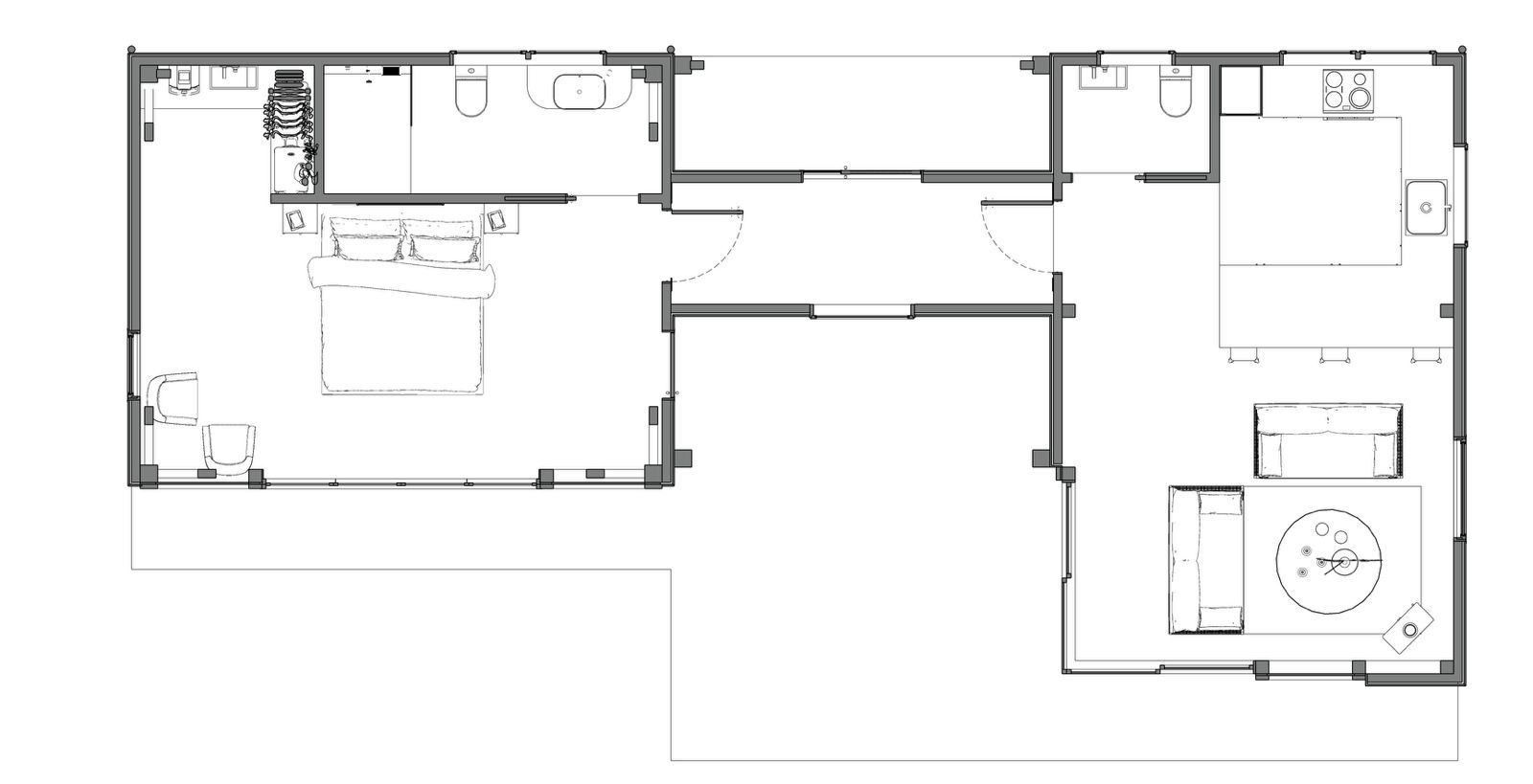
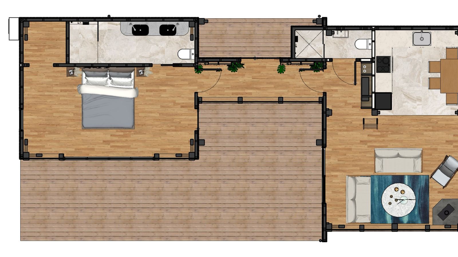
The Pukaki 70m2

A fast-build monopitch home with two 30m² pods, a connecting linkway, and a loft above the kitchen. 150mm Metalcraft panel roof system ensures quick installation and energy efficiency.

Customise It To Your Lifestyle

Heritage Timbercraft has been building timberframes for almost 20 years, and in that time, one thing remains true, no two projects are ever the same.

Contact Peter on 027-379-9213 for an obligation free discussion, or complete our contact form.

We are keen to hear your ideas