Floor Plans

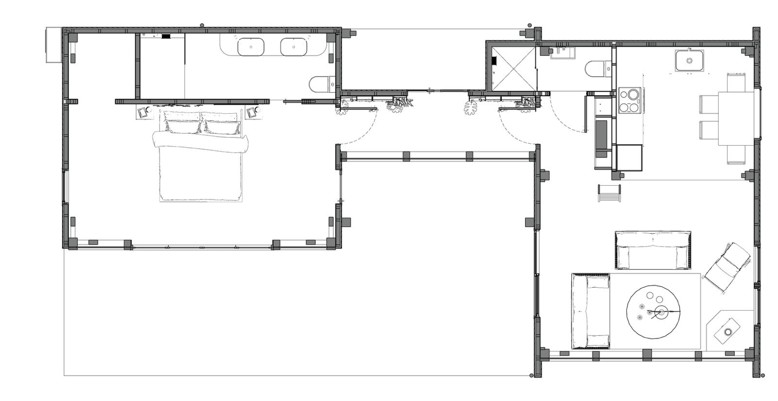
The Mavora 70m2

Fast-build small modular home featuring two 30m² pods and a central linkway. 150mm Metalcraft panel roof for quick installation and superior efficiency. Spacious loft positioned above the kitchen.

Customise It To Your Lifestyle

Heritage Timbercraft has been building timberframes for almost 20 years, and in that time, one thing remains true, no two projects are ever the same.

Contact Peter on 027-379-9213 for an obligation free discussion, or complete our contact form.

We are keen to hear your ideas