Floor Plans

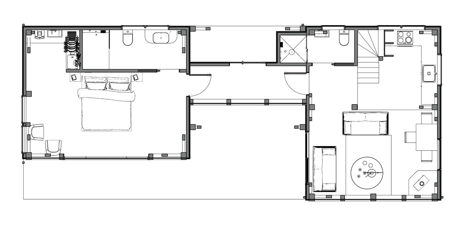
The Coleridge 70m2

Small post and beam home with two 30m² units, linkway, and a covered veranda. Full glazed gable ends, a lofted master bedroom, and a kids’ toilet for family-friendly living.

Customise It To Your Lifestyle

Heritage Timbercraft has been building timberframes for almost 20 years, and in that time, one thing remains true, no two projects are ever the same.

Contact Peter on 027-379-9213 for an obligation free discussion, or complete our contact form.

We are keen to hear your ideas