Floor Plans

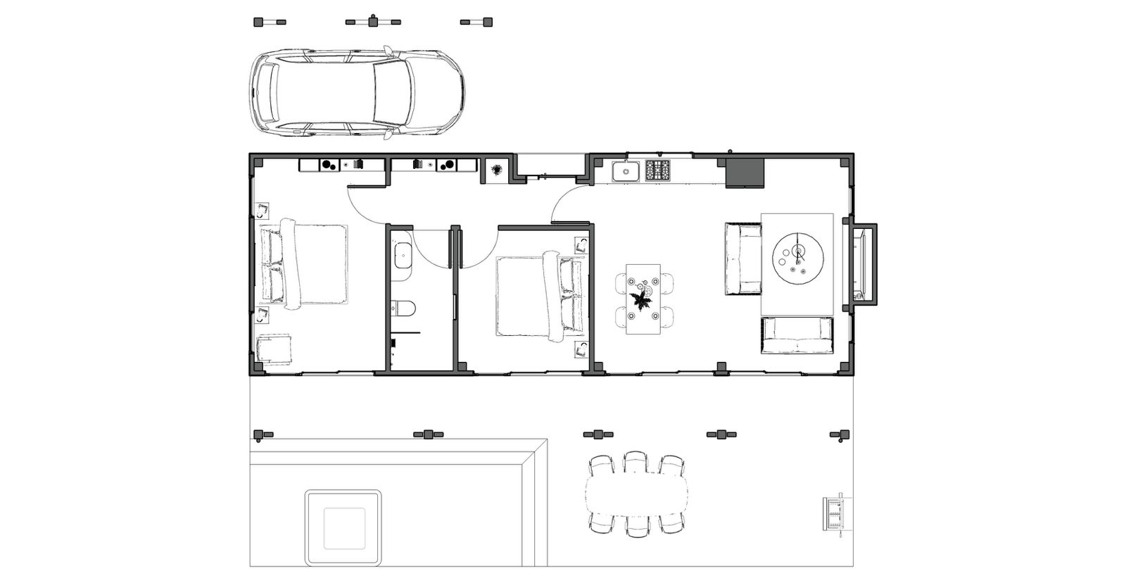
The Kaimaniwa 70m2

A fast-to-build post and beam cottage with lots of charm. Spacious, open-plan kitchen and living area, covered entranceway, covered veranda and carport.

Customise It To Your Lifestyle

Heritage Timbercraft has been building timberframes for almost 20 years, and in that time, one thing remains true, no two projects are ever the same.

Contact Peter on 027-379-9213 for an obligation free discussion, or complete our contact form.

We are keen to hear your ideas